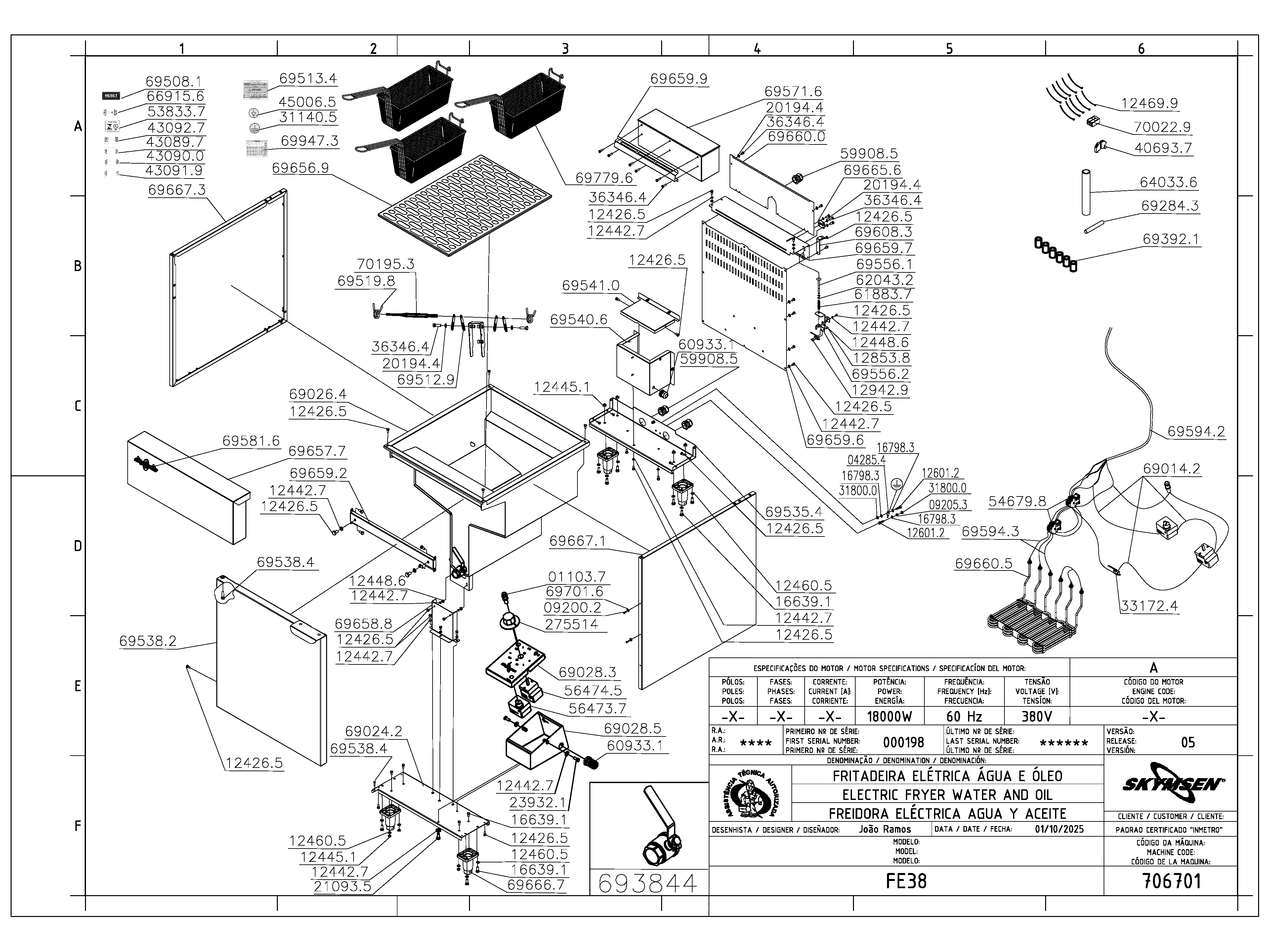
FE38
FRITADEIRA ELÉTRICA ÁGUA E ÓLEO, 38 LITROS, INOX, TRIFÁSICA
cod.: 70670.1
- Tensão 380 V
- Potência 18.000 W
- Frequência 60 Hz

Fechar
Código:
Descrição:
UM:
Peso Líquido:
C. Fiscal:
Código | Descrição | UM | Peso Líquido |
---|---|---|
01103.7 | LAMP.LP-11C 110/220V VERM | PC |
04203.0 | ABRACADEIRA T-18R (PEQUENA) | PC |
09200.2 | PFS M4x12 DIN 965 INOX | PC |
12426.5 | PFS M6x16 DIN 933 INOX | PC |
12442.7 | ARR.L.A6,4 DIN 125 INOX | PC |
12445.1 | PCA M8 DIN 934 INOX | PC |
12448.6 | PCA M6 DIN 934 INOX | PC |
12460.5 | ARR.L.A8,4 DIN 125 INOX | PC |
12469.9 | ABRACADEIRA K22-LM (T-80I) (MAIOR) | PC |
12853.8 | PCA M3 DIN 934 INOX | PC |
12942.9 | PFS M3x16 DIN 7985 INOX | PC |
16639.1 | PFS M8x30 DIN 933 INOX | PC |
16798.3 | ARR.L.A4,3 DIN 125 INOX | PC |
20194.4 | ARR.L.A5,3 DIN 125 INOX | PC |
21093.5 | PFS M5x12 DIN 933 INOX | PC |
23932.1 | PFS M4x5 DIN 7985 INOX | PC |
27551.4 | BOTOEIRA | PC |
30565.0 | CHAVE 30223 M2FT2FE3V/197 | PC |
31800.0 | PCA M4 DIN 985 INOX | PC |
31923.6 | PRENSA CABO PG13,5 LCP13,5BL+PCA C/RE | PC |
33172.4 | CHAVE 40127 A2E3Q-KEMA | PC |
36346.4 | PFS M5x16 DIN 933 INOX | PC |
40693.7 | POSTE P/TRILHO IEC 60715 (10289061) | PC |
54679.8 | CONTATOR CWB25-11-30X26 190V 50Hz/220 | PC |
56473.7 | TERMOSTATO 30A TU HC RM T.F 230 GRAUS | PC |
56474.5 | CONJ.TERMOST.30A TU HC 200 GRAUS 5mm | PC |
59908.5 | PRENSA CABO PG29 PRETO+PCA (CLCP29B) | PC |
60933.1 | PRENSA CABO PG09 PRETO (CLCP09B) | PC |
61883.7 | MOLA DO GATILHO (1x13,1x64,5) | PC |
62043.2 | ANEL 8 DIN 6799 | PC |
64033.6 | TUBO PARA DRENAGEM | PC |
65847.2 | SINALIZADOR SONORO S-4,5/15V-F-B BITO | PC |
69284.3 | TUBO TERMO ENCOLHIVEL 25,4X750MM | PC |
69321.6 | CONJ.PAINEL COMANDO FE38 380V-T(69321 | PC |
69392.1 | TUBO TERM.ENCOL.1X40MM | PC |
69468.6 | CONJ.LATERAL ESQUERDA(694686) | PC |
69468.9 | CONJ.LATERAL DIREITA(694689) | PC |
69512.9 | SUPORTE ARTICULADOR DO BULBO | PC |
69519.8 | TRAVA BULBO FURO DIAM.4,8 ARAME 1MM | PC |
69535.4 | CONJ.TRAVESSA INFERIOR 220/380V-T | PC |
69538.1 | CONJ.PAINEL COMANDO FE38 380V-T | PC |
69538.2 | CONJ.PORTA(695382) | PC |
69538.4 | PFS M6X25 DIN 7985 INOX | PC |
69539.5 | FECHAMENTO PAINEL FRONTAL | PC |
69540.3 | CONJ.CORPO PAINEL FRONTAL(695403) | PC |
69540.4 | CONJ.LATERAL ESQUERDA(695404) | PC |
69540.5 | CONJ.LATERAL DIREITA(695405) | PC |
69540.6 | CONJ.PAINEL INFERIOR(695406) | PC |
69541.0 | CONJ.TAMPA PAINEL INFERIOR | PC |
69556.1 | CS ACIONADOR DO SENSOR | PC |
69556.2 | SUPORTE ACIONAMENTO DO SENSOR | PC |
69571.6 | CS PAINEL SUPERIOR FE38 220/380V-T(69 | PC |
69581.6 | LOGOTIPO SKYMSEN ZAMAK 38X80MM (MOLDE | PC |
69594.2 | CB.5X6MM2X2000MM COMPLETO | PC |
69594.3 | CB.3X6MM2X1670MM COMPLETO | PC |
69608.2 | CHICOTE ELETRICO FE-25/38 DIGITAL 380 | PC |
69608.3 | BATENTE PAINEL SUPERIOR | PC |
69656.9 | GRADE APOIO DOS CESTOS(696569) | PC |
69657.2 | TERMOPAR TIPO J INOX D6 C360 NIPLE 1/ | PC |
69657.6 | CS TANQUE 44L | PC |
69657.7 | CS FRONTAL SUPERIOR(696577) | PC |
69658.8 | REFORCO FIXACAO TANQUE | PC |
69659.2 | CONJ.TRAVESSA SUPERIOR | PC |
69659.6 | FECHAMENTO TRASEIRO(696596) | PC |
69659.7 | CONJ.TRAVESSA TRASEIRA(696597) | PC |
69659.9 | SUPORTE ESCORREDOR(696599) | PC |
69660.0 | FECHAMENTO PAINEL SUPERIOR(696600) | PC |
69660.5 | RESISTENCIA TUBULAR 18000W 220/380V 5 | PC |
69665.6 | DOBRADICA NAUTICA SIMETRICA 38X34 | PC |
69666.7 | PE NIV.FLANGE RET. 125-165MM (COD.107 | PC |
69667.0 | SUPORTE FIXACAO TERMOSTATO TIPO J | PC |
69667.1 | CONJ.LATERAL DIREITA | PC |
69667.3 | CONJ.LATERAL ESQUERDA | PC |
69669.5 | CS TANQUE 44L(696695) | PC |
69701.6 | IMA ANEL DE NDFEB 14 X 4 X3 MM FURO E | PC |
69779.6 | CESTO(697796) | PC |
69997.1 | CONTROLADOR DIGITAL INV-YC4-06-J-H-F | PC |
70195.3 | TERMOSTATO TU F RM FS 230ØC 20A(002.7 | PC |
Código | Descrição | MU | |
---|---|---|---|
01103.7 | LAMP.LP-11C 110/220V VERM | PC | US$ 1.37 |
04203.0 | ABRACADEIRA T-18R (PEQUENA) | PC | US$ 0.06 |
09200.2 | PFS M4x12 DIN 965 INOX | PC | US$ 0.06 |
12426.5 | PFS M6x16 DIN 933 INOX | PC | US$ 0.12 |
12442.7 | ARR.L.A6,4 DIN 125 INOX | PC | US$ 0.06 |
12445.1 | PCA M8 DIN 934 INOX | PC | US$ 0.11 |
12448.6 | PCA M6 DIN 934 INOX | PC | US$ 0.06 |
12460.5 | ARR.L.A8,4 DIN 125 INOX | PC | US$ 0.06 |
12469.9 | ABRACADEIRA K22-LM (T-80I) (MAIOR) | PC | US$ 0.07 |
12853.8 | PCA M3 DIN 934 INOX | PC | US$ 0.06 |
12942.9 | PFS M3x16 DIN 7985 INOX | PC | US$ 0.06 |
16639.1 | PFS M8x30 DIN 933 INOX | PC | US$ 0.55 |
16798.3 | ARR.L.A4,3 DIN 125 INOX | PC | US$ 0.06 |
20194.4 | ARR.L.A5,3 DIN 125 INOX | PC | US$ 0.06 |
21093.5 | PFS M5x12 DIN 933 INOX | PC | US$ 0.11 |
23932.1 | PFS M4x5 DIN 7985 INOX | PC | US$ 0.09 |
27551.4 | BOTOEIRA | PC | US$ 1.84 |
30565.0 | CHAVE 30223 M2FT2FE3V/197 | PC | US$ 2.15 |
31800.0 | PCA M4 DIN 985 INOX | PC | US$ 0.09 |
31923.6 | PRENSA CABO PG13,5 LCP13,5BL+PCA C/RE | PC | US$ 3.01 |
33172.4 | CHAVE 40127 A2E3Q-KEMA | PC | US$ 2.70 |
36346.4 | PFS M5x16 DIN 933 INOX | PC | US$ 0.12 |
40693.7 | POSTE P/TRILHO IEC 60715 (10289061) | PC | US$ 0.59 |
54679.8 | CONTATOR CWB25-11-30X26 190V 50Hz/220 | PC | US$ 33.42 |
56473.7 | TERMOSTATO 30A TU HC RM T.F 230 GRAUS | PC | US$ 32.63 |
56474.5 | CONJ.TERMOST.30A TU HC 200 GRAUS 5mm | PC | US$ 32.40 |
59908.5 | PRENSA CABO PG29 PRETO+PCA (CLCP29B) | PC | US$ 4.86 |
60933.1 | PRENSA CABO PG09 PRETO (CLCP09B) | PC | US$ 1.59 |
61883.7 | MOLA DO GATILHO (1x13,1x64,5) | PC | US$ 0.63 |
62043.2 | ANEL 8 DIN 6799 | PC | US$ 0.06 |
64033.6 | TUBO PARA DRENAGEM | PC | US$ 15.41 |
65847.2 | SINALIZADOR SONORO S-4,5/15V-F-B BITO | PC | US$ 12.57 |
69284.3 | TUBO TERMO ENCOLHIVEL 25,4X750MM | PC | US$ 2.80 |
69321.6 | CONJ.PAINEL COMANDO FE38 380V-T(69321 | PC | US$ 257.39 |
69392.1 | TUBO TERM.ENCOL.1X40MM | PC | US$ 0.30 |
69468.6 | CONJ.LATERAL ESQUERDA(694686) | PC | US$ 7.44 |
69468.9 | CONJ.LATERAL DIREITA(694689) | PC | US$ 7.27 |
69512.9 | SUPORTE ARTICULADOR DO BULBO | PC | US$ 0.30 |
69519.8 | TRAVA BULBO FURO DIAM.4,8 ARAME 1MM | PC | US$ 0.27 |
69535.4 | CONJ.TRAVESSA INFERIOR 220/380V-T | PC | US$ 21.33 |
69538.1 | CONJ.PAINEL COMANDO FE38 380V-T | PC | US$ 257.08 |
69538.2 | CONJ.PORTA(695382) | PC | US$ 41.25 |
69538.4 | PFS M6X25 DIN 7985 INOX | PC | US$ 0.22 |
69539.5 | FECHAMENTO PAINEL FRONTAL | PC | US$ 4.90 |
69540.3 | CONJ.CORPO PAINEL FRONTAL(695403) | PC | US$ 17.13 |
69540.4 | CONJ.LATERAL ESQUERDA(695404) | PC | US$ 7.20 |
69540.5 | CONJ.LATERAL DIREITA(695405) | PC | US$ 7.20 |
69540.6 | CONJ.PAINEL INFERIOR(695406) | PC | US$ 18.56 |
69541.0 | CONJ.TAMPA PAINEL INFERIOR | PC | US$ 7.81 |
69556.1 | CS ACIONADOR DO SENSOR | PC | US$ 8.42 |
69556.2 | SUPORTE ACIONAMENTO DO SENSOR | PC | US$ 11.04 |
69571.6 | CS PAINEL SUPERIOR FE38 220/380V-T(69 | PC | US$ 89.72 |
69581.6 | LOGOTIPO SKYMSEN ZAMAK 38X80MM (MOLDE | PC | US$ 2.97 |
69594.2 | CB.5X6MM2X2000MM COMPLETO | PC | US$ 77.34 |
69594.3 | CB.3X6MM2X1670MM COMPLETO | PC | US$ 66.88 |
69608.2 | CHICOTE ELETRICO FE-25/38 DIGITAL 380 | PC | US$ 33.31 |
69608.3 | BATENTE PAINEL SUPERIOR | PC | US$ 1.43 |
69656.9 | GRADE APOIO DOS CESTOS(696569) | PC | US$ 29.43 |
69657.2 | TERMOPAR TIPO J INOX D6 C360 NIPLE 1/ | PC | US$ 21.28 |
69657.6 | CS TANQUE 44L | PC | US$ 488.66 |
69657.7 | CS FRONTAL SUPERIOR(696577) | PC | US$ 31.78 |
69658.8 | REFORCO FIXACAO TANQUE | PC | US$ 5.55 |
69659.2 | CONJ.TRAVESSA SUPERIOR | PC | US$ 10.53 |
69659.6 | FECHAMENTO TRASEIRO(696596) | PC | US$ 23.77 |
69659.7 | CONJ.TRAVESSA TRASEIRA(696597) | PC | US$ 25.80 |
69659.9 | SUPORTE ESCORREDOR(696599) | PC | US$ 11.25 |
69660.0 | FECHAMENTO PAINEL SUPERIOR(696600) | PC | US$ 8.23 |
69660.5 | RESISTENCIA TUBULAR 18000W 220/380V 5 | PC | US$ 160.88 |
69665.6 | DOBRADICA NAUTICA SIMETRICA 38X34 | PC | US$ 5.09 |
69666.7 | PE NIV.FLANGE RET. 125-165MM (COD.107 | PC | US$ 5.01 |
69667.0 | SUPORTE FIXACAO TERMOSTATO TIPO J | PC | US$ 1.17 |
69667.1 | CONJ.LATERAL DIREITA | PC | US$ 63.68 |
69667.3 | CONJ.LATERAL ESQUERDA | PC | US$ 61.02 |
69669.5 | CS TANQUE 44L(696695) | PC | US$ 507.11 |
69701.6 | IMA ANEL DE NDFEB 14 X 4 X3 MM FURO E | PC | US$ 2.50 |
69779.6 | CESTO(697796) | PC | US$ 35.51 |
69997.1 | CONTROLADOR DIGITAL INV-YC4-06-J-H-F | PC | US$ 73.15 |
70195.3 | TERMOSTATO TU F RM FS 230ØC 20A(002.7 | PC | US$ 29.41 |